top of page

Hotel en Surco Viejo

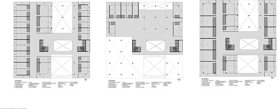
En la propuesta se buscó emplazar el edificio en la topografía que se enfrenta frente a la vía expresa, sin dejar el espacio público de lado, con la finalidad de que la propuesta esté activa tanto de noche como de día, es por eso que en los primeros niveles del Hotel se decidió colocar comercio y zona cultural que permitiera activar la zona, al subir los niveles se cuenta con una planta de espacio público que rompe el edificio en dos, generando una zona pública y privada en la zona superior con los dormitorios.







bottom of page











